Azione in corso...

Dati tecnici immobile

Villa Unifamiliare
Vendita
1950
32569
15
6
315
1.150.000,00

Locali Extra

CARATTERISTICHE EXTRA

1
2
Privato
Libero
Da ristrutturare
-1

DESCRIZIONE

Su un lotto indipendente, con ingressi separati e la massima privacy, si trovano due fabbricati distinti, completamente liberi sui quattro lati. Attualmente da demolire e ricostruire, offrono però un potenziale straordinario grazie alla possibilità di ampliamento del 20% e a un progetto già delineato che ti consente di valorizzare al massimo l’area.

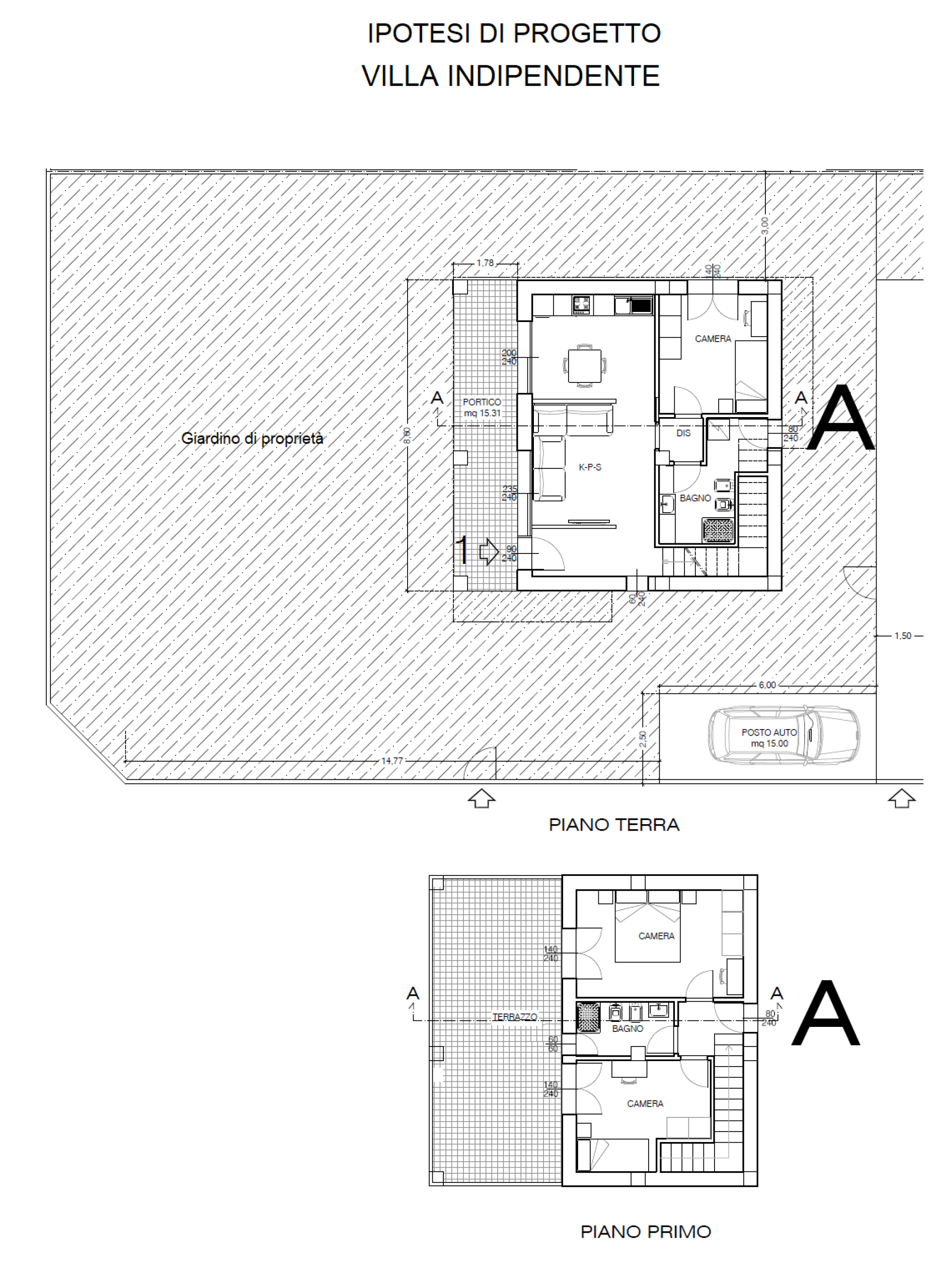
Qui puoi realizzare una villa singola esclusiva, sviluppata su due livelli, dove ogni dettaglio è pensato per offrire comfort, eleganza e funzionalità. L’ingresso si apre su una zona giorno ampia e luminosa, con salone e cucina a vista affacciati sul verde privato. Le tre camere da letto garantiscono privacy e vivibilità anche per una famiglia numerosa, mentre i doppi servizi, il portico, la terrazza vista mare e la piscina privata creano un ambiente di autentico benessere quotidiano. Il giardino, ampio e riservato, circonda l’intera abitazione regalando la sensazione di vivere in un’oasi a due passi dalla spiaggia.

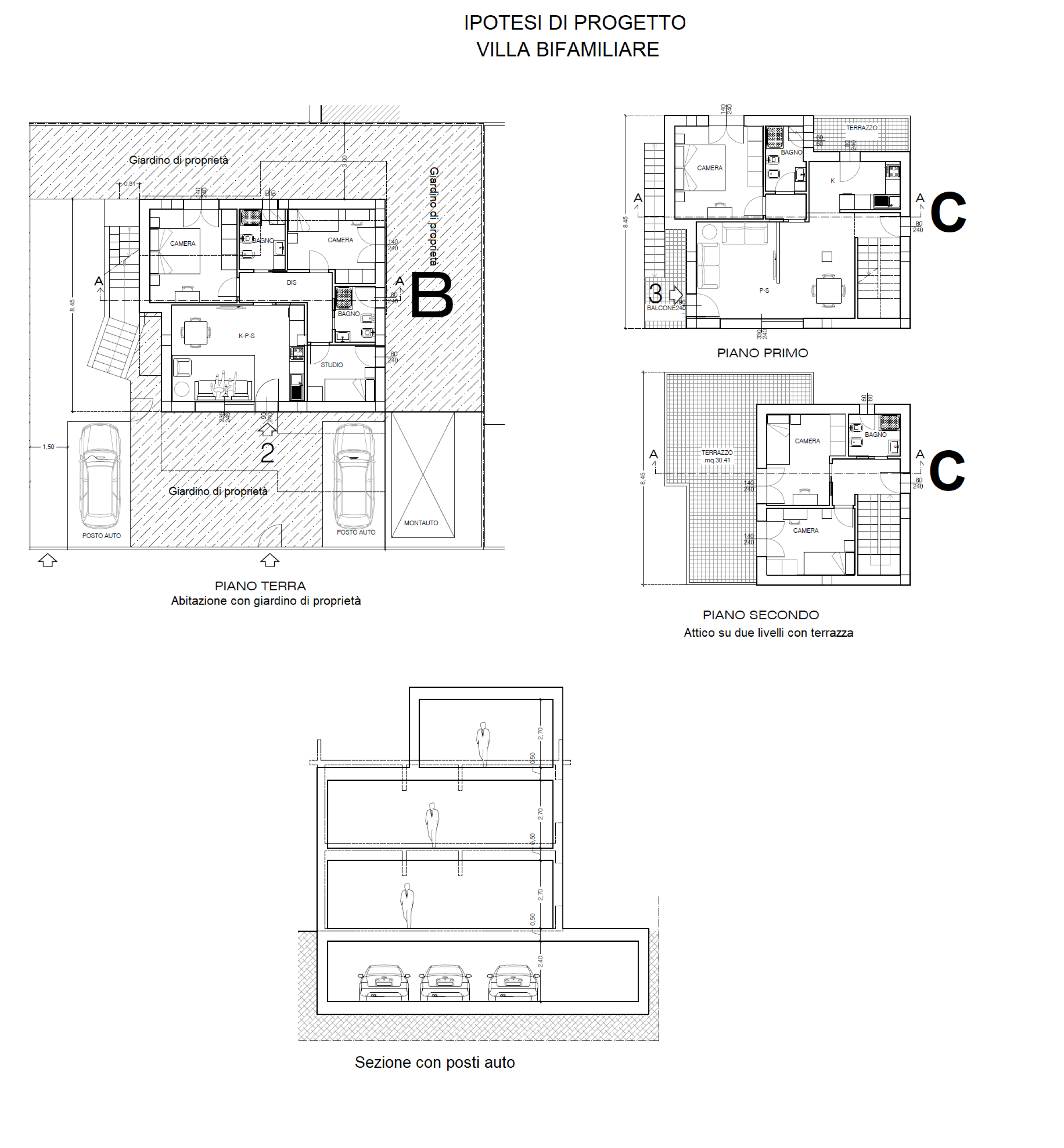
Il secondo edificio può essere trasformato in una villa bifamiliare di pregio, perfetta sia per la vendita che per la messa a reddito. Al piano terra si sviluppa una comoda abitazione con tre camere, doppi servizi, box e giardino privato. Al piano superiore, un attico su due livelli con terrazze panoramiche e solarium vista mare offre un’esperienza abitativa raffinata, ideale per chi cerca una seconda casa o una residenza esclusiva al mare.

Tutte le unità immobiliari sono dotate di posti auto interni e interrati.

Questa operazione unisce la rarità della posizione alla flessibilità progettuale. È un’opportunità concreta per chi vuole investire in un immobile a forte valore aggiunto, in una delle zone più richieste di Riccione, dove la domanda è alta ma l’offerta di qualità è sempre più limitata.

Se stai cercando qualcosa che unisca posizione, potenzialità e ritorno economico, questa è la tua occasione per realizzare un progetto che parla di eleganza, funzionalità e valore duraturo. Contattaci per scoprire come trasformare questa visione in realtà.

N.B. Si avvisa la spettabile clientela che le caratteristiche tecniche, la disposizione interna e gli accessori indicati, potrebbero in alcuni casi essere diversi dall'effettivo stato di fatto dell'immobile.
A causa delle difformità dei dati pubblicati dai vari portali, la società Facile Rogitare Misano SRL declina ogni responsabilità per eventuali involontarie incoerenze. Si precisa che le descrizioni sopra riportante non rappresentano alcun impegno contrattuale.

PLANIMETRIE

VIDEO DELL'IMMOBILE

VIRTUAL TOUR

MAPPA


Visualizza mappa più grande

RICHIEDI INFORMAZIONI

Compila il modulo per richiedere maggiori infomazioni sull'immobile

  Autorizzo la Società ad informarmi, a mezzo fax, email, sms, supporti cartacei o altro, su iniziative commerciali o informative, comunicazioni pubblicitarie, indagini di mercato, programmi a premi e rilevazioni del livello di soddisfazione della clientela. In qualsiasi momento, potrò chiedere di esercitare i diritti di cui all'art. 13 del DLG 3 30/06/03 n. 196.

Realizzato con VelociBuilder - Another Project By: Marketing:Start! - Privacy Policy