Azione in corso...

Dati tecnici immobile

Palazzo/Edificio
Vendita
2025
3
A2
32713
6
2
125
630.000,00

Locali Extra

CARATTERISTICHE EXTRA

1
In costruzione
Nuovo
1
Autonomo
Elettrica, A pavimento

DESCRIZIONE

A soli 300 metri dalla spiaggia, in una palazzina esclusiva di sole tre unità, nasce “Monti 14”: un progetto abitativo elegante e riservato, dove il design incontra la qualità della vita. Tre residenze, tre personalità diverse, un solo obiettivo: offrirti il massimo.

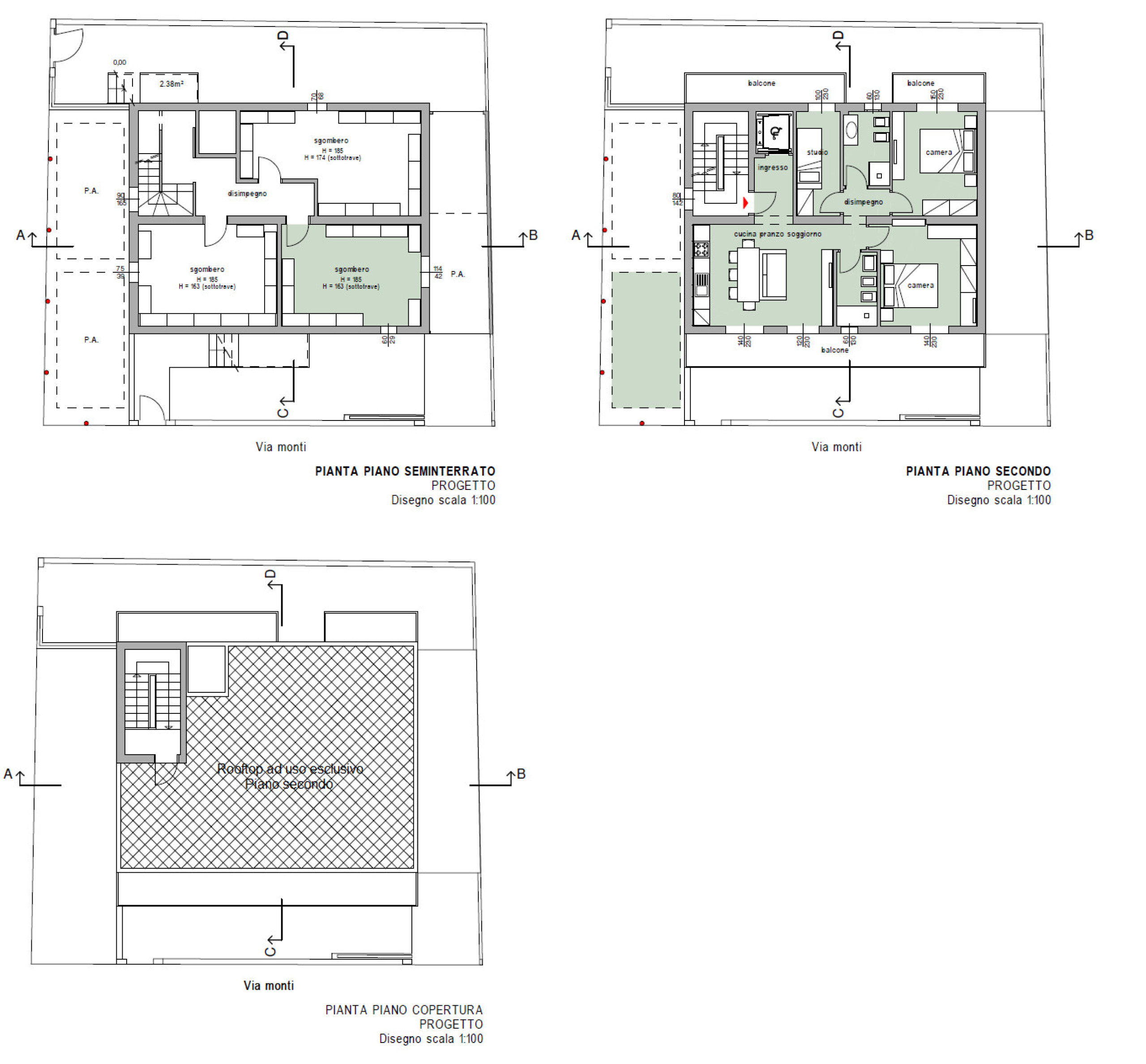
1. Primo Piano con Terrazzo – €630.000
L’equilibrio perfetto tra spazio, luce e privacy.

Entrando, ti accoglie una zona giorno ampia e luminosa, con cucina a vista, pensata per esaltare la convivialità. Le ampie finestre si aprono su un balcone ideale per momenti di relax al sole. Le due camere matrimoniali, entrambe con balcone privato, garantiscono comfort e riservatezza. La terza stanza, più intima, è perfetta come studio o camera per gli ospiti. Doppi servizi finestrati, moderni e funzionali, completano gli interni.
Al piano terra, una cantina e il posto auto sotto casa aggiungono valore a una proposta già completa.

Superficie commerciale: 118 mq

2. Piano Terra con Giardino Privato – €650.000
La tua oasi verde, a due passi dal mare.

Con ingresso indipendente, questo appartamento ti accoglie in un soggiorno arioso con cucina a vista, perfetto per la vita in famiglia. Le tre camere sono spaziose e luminose, i doppi servizi raffinati e funzionali. Il punto forte? Il giardino privato di buona metratura: uno spazio esclusivo dove goderti il sole, leggere o cenare all’aperto in estate.
Inclusi cantina e posto auto, elementi sempre più rari in una posizione così centrale e ricercata.

Superficie commerciale: 115 mq

3. Attico con Terrazza – €675.000
Sali di livello: il tuo rifugio sopra Riccione.

Un ingresso elegante conduce alla zona giorno con cucina a vista: uno spazio aperto, dominato dalla luce naturale. Le due camere matrimoniali e la terza stanza polivalente offrono versatilità e comfort. Doppi servizi finestrati e finiture moderne rendono ogni ambiente raffinato.
Ma la vera perla è il rooftop privato di 75 mq: una terrazza panoramica che regala un angolo di cielo tutto per te. Perfetta per rilassarsi o ospitare con stile, a pochi passi dal mare. Completa la proposta un comodo posto auto sotto casa.

Superficie commerciale: 125 mq

N.B. Si avvisa la spettabile clientela che le caratteristiche tecniche, la disposizione interna e gli accessori indicati, potrebbero in alcuni casi essere diversi dall'effettivo stato di fatto dell'immobile.
A causa delle difformità dei dati pubblicati dai vari portali, la società Facile Rogitare Misano SRL declina ogni responsabilità per eventuali involontarie incoerenze. Si precisa che le descrizioni sopra riportante non rappresentano alcun impegno contrattuale.

PLANIMETRIE

VIDEO DELL'IMMOBILE

VIRTUAL TOUR

MAPPA


Visualizza mappa più grande

RICHIEDI INFORMAZIONI

Compila il modulo per richiedere maggiori infomazioni sull'immobile

  Autorizzo la Società ad informarmi, a mezzo fax, email, sms, supporti cartacei o altro, su iniziative commerciali o informative, comunicazioni pubblicitarie, indagini di mercato, programmi a premi e rilevazioni del livello di soddisfazione della clientela. In qualsiasi momento, potrò chiedere di esercitare i diritti di cui all'art. 13 del DLG 3 30/06/03 n. 196.

Realizzato con VelociBuilder - Another Project By: Marketing:Start! - Privacy Policy