Azione in corso...

Dati tecnici immobile

Villa Unifamiliare
Vendita
1930
32991
8
2
285
230.000,00

Locali Extra

CARATTERISTICHE EXTRA

1
1
Privato
Libero
Da ristrutturare
1
Metano, A radiatori

DESCRIZIONE

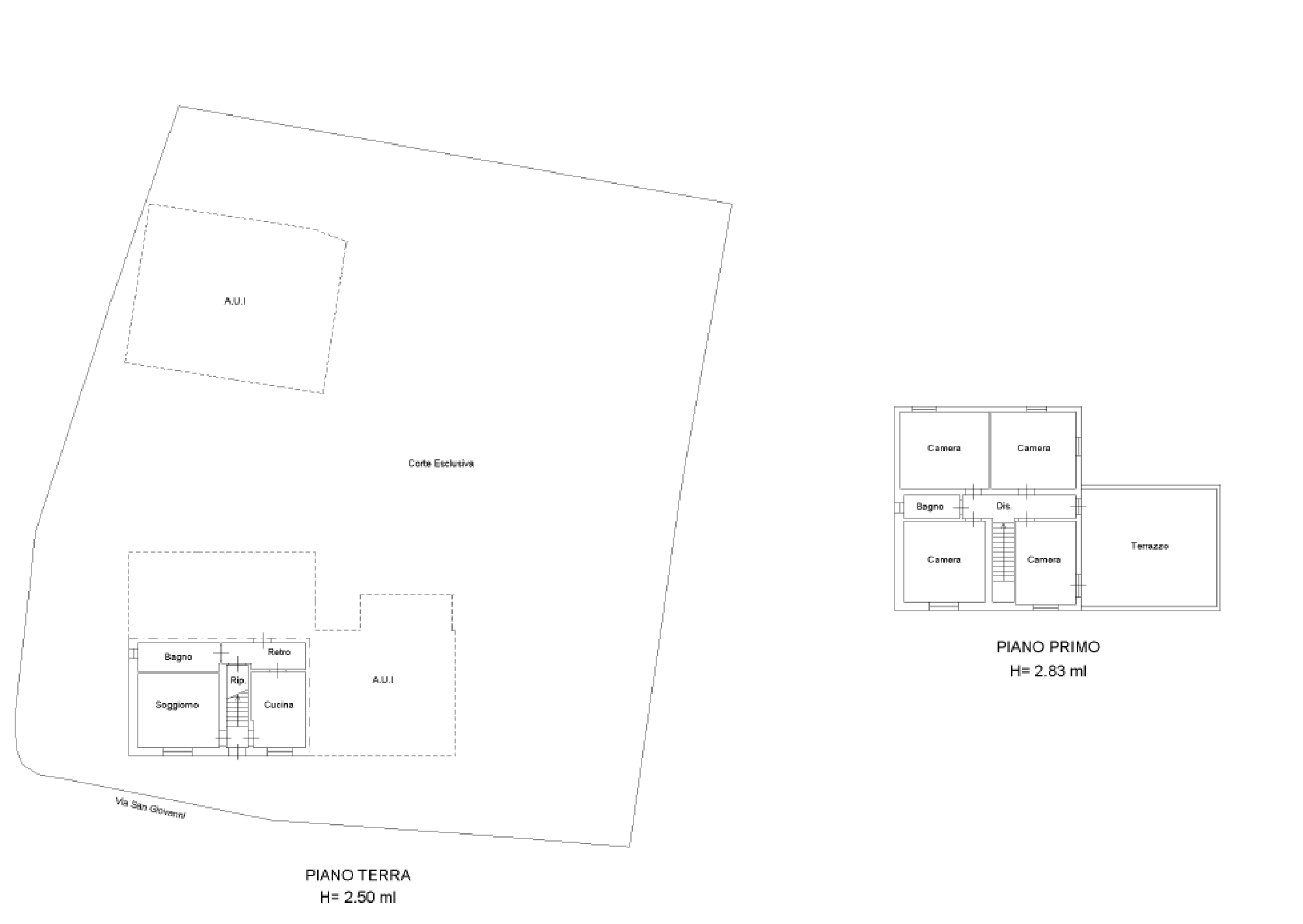
In una zona riservata e silenziosa di Misano, vicino alla zona di Misano Cella, ti aspetta un'opportunità unica: una casa indipendente su due livelli con ampia terrazza e vista panoramica, immersa in un lotto di quasi 1000 mq.

L'immobile è completamente da ristrutturare, ma racchiude un enorme potenziale: potrai trasformarlo in una splendida villa, personalizzando ogni dettaglio secondo il tuo stile di vita. Gli ampi spazi interni si prestano a diventare il cuore pulsante di una casa da vivere ogni giorno con la tua famiglia, oppure la cornice perfetta per una seconda casa dove rifugiarti nel verde.

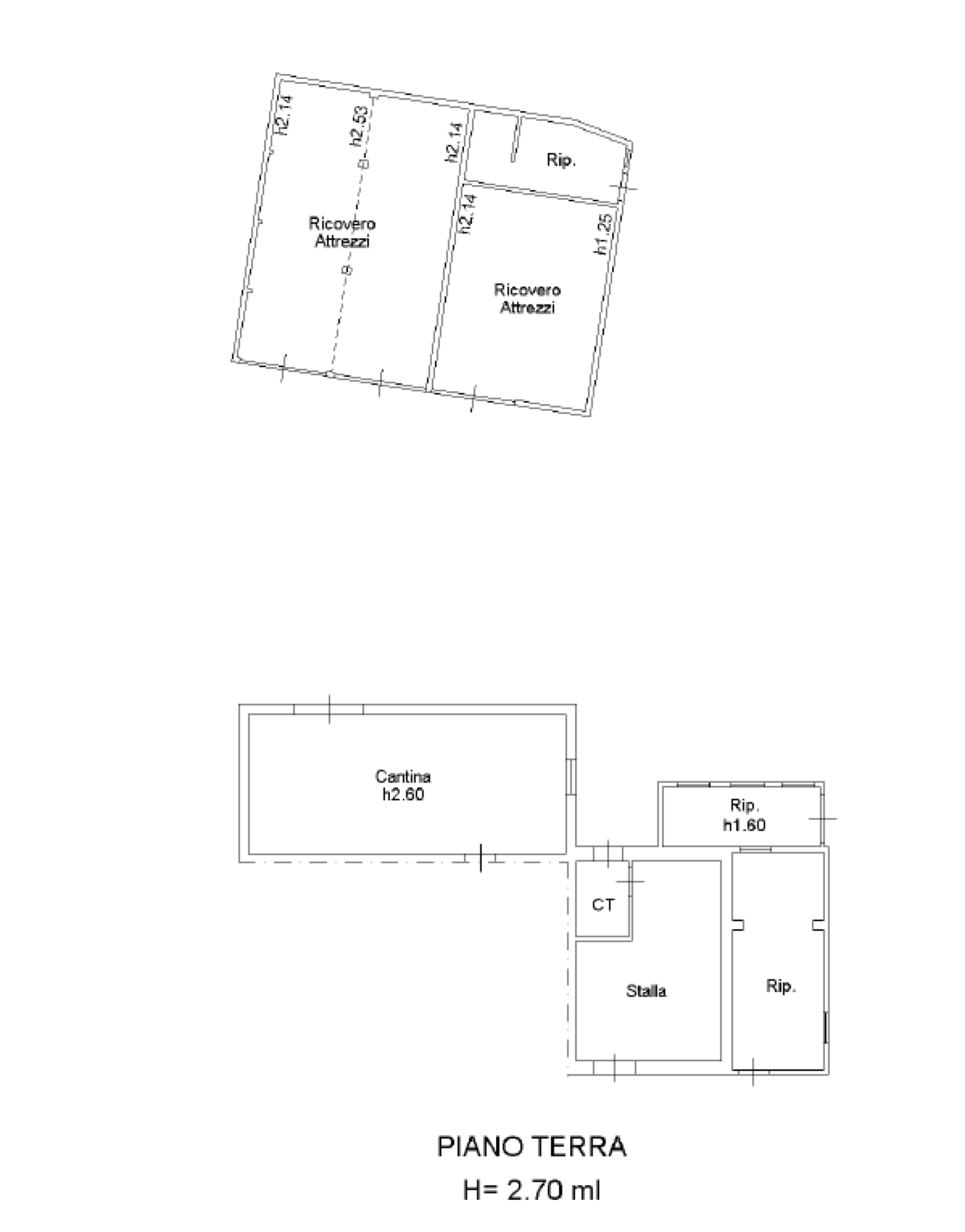
All’interno della proprietà è presente anche una struttura secondaria, un tempo adibita a ricovero attrezzi, che potrà diventare una comoda dependance per gli ospiti o un garage. Il terreno circostante è perfetto per realizzare una piscina panoramica, un giardino rigoglioso, un orto o una zona relax all'aperto: un vero prolungamento della casa, dove goderti l’alba sorseggiando un caffè o il tramonto in totale pace.

Ogni metro quadro è un invito a vivere all’aperto, a respirare, a rallentare.

È la soluzione perfetta per chi desidera un rifugio autentico, lontano dal rumore ma vicino a tutto ciò che conta. Per chi sogna una casa da abitare ogni giorno con la propria famiglia, oppure una seconda casa da raggiungere ogni volta che nasce il desiderio di staccare la spina e ritrovare sé stessi.

Se sei interessato a questa soluzione contattaci per prenotare una visita!

PLANIMETRIE

VIDEO DELL'IMMOBILE

VIRTUAL TOUR

MAPPA


Visualizza mappa più grande

RICHIEDI INFORMAZIONI

Compila il modulo per richiedere maggiori infomazioni sull'immobile

  Autorizzo la Società ad informarmi, a mezzo fax, email, sms, supporti cartacei o altro, su iniziative commerciali o informative, comunicazioni pubblicitarie, indagini di mercato, programmi a premi e rilevazioni del livello di soddisfazione della clientela. In qualsiasi momento, potrò chiedere di esercitare i diritti di cui all'art. 13 del DLG 3 30/06/03 n. 196.

Realizzato con VelociBuilder - Another Project By: Marketing:Start! - Privacy Policy