Azione in corso...

Dati tecnici immobile

Appartamento
Vendita
2004
1
33415
3
2
164
245.000,00

Locali Extra

CARATTERISTICHE EXTRA

1
1
Libero
Ottimo
Autonomo
Metano, A radiatori

DESCRIZIONE

Vi presentiamo un appartamento cielo-terra indipendente che coniuga perfettamente comfort, funzionalità e posizione strategica. A soli cinque minuti dal centro di Morciano di Romagna, questa soluzione abitativa vi permette di vivere nella quiete delle colline romagnole senza rinunciare alla comodità di avere scuole, negozi, ospedali e ottimi collegamenti con le principali città a portata di mano.
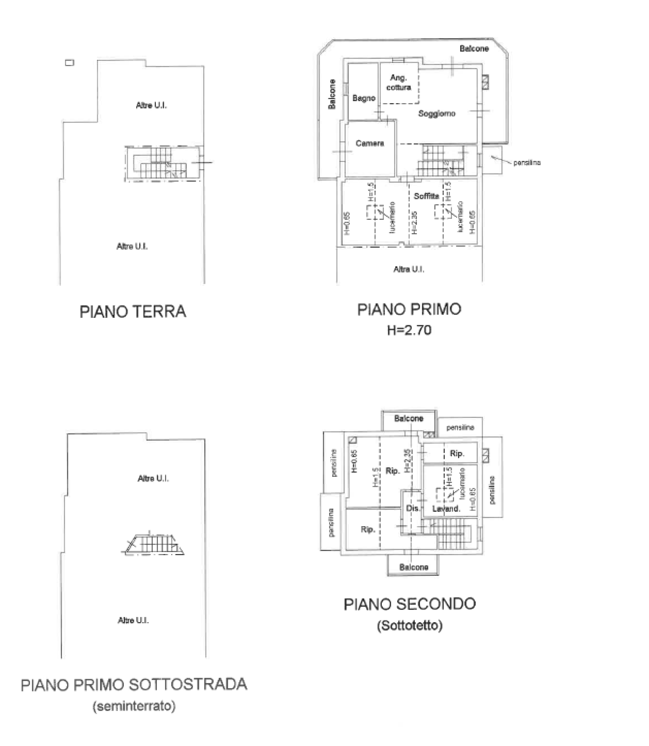
L’ingresso indipendente al piano terra accoglie i residenti in uno spazio riservato da cui si può accedere all’abitazione posta al piano superiore oppure scendere nel garage e nell’area lavanderia. Salendo, al primo piano, si apre una luminosa zona giorno, pensata per vivere momenti di relax e convivialità in un’atmosfera calda e accogliente. La cucina, abitabile e ben organizzata, si presta alla preparazione di pranzi e cene in famiglia, con un accesso diretto a un ampio balcone (anche dal soggiorno) che avvolge l’abitazione su tre lati, regalando luce naturale e continuità tra interno ed esterno. Il bagno su questo livello è moderno, spazioso e dotato di un pratico box doccia. Sempre qui si trova un ampio spazio, perfetto come camera o stanza per gli hobby, studio o palestra.
Il secondo piano, mansardato, ospita la zona notte. Qui si trova una spaziosa camera matrimoniale dotata di un ampia cabina armadio,e una camera singola. Entrambe le camere affacciano su due balconi distinti, offrendo una suggestiva vista panoramica sulla campagna circostante, perfetta per iniziare la giornata nel modo migliore. Sempre qui è presente un’ ulteriore bagno elegante e moderno, dotato di vasca a libera installazione.
Completa la proprietà un garage al piano seminterrato, accessibile con porta sezionale coibentata e telecomandata, e una zona lavanderia separata, già predisposta con un box doccia, perfetta per gestire con praticità la vita quotidiana.
Questa abitazione rappresenta la scelta ideale per chi cerca indipendenza, comodità e qualità della vita in una cornice naturale e silenziosa, senza allontanarsi troppo dalla città.
Se sei interessato a questa soluzione, contattaci.

PLANIMETRIE

VIDEO DELL'IMMOBILE

VIRTUAL TOUR

MAPPA


Visualizza mappa più grande

RICHIEDI INFORMAZIONI

Compila il modulo per richiedere maggiori infomazioni sull'immobile

  Autorizzo la Società ad informarmi, a mezzo fax, email, sms, supporti cartacei o altro, su iniziative commerciali o informative, comunicazioni pubblicitarie, indagini di mercato, programmi a premi e rilevazioni del livello di soddisfazione della clientela. In qualsiasi momento, potrò chiedere di esercitare i diritti di cui all'art. 13 del DLG 3 30/06/03 n. 196.

Realizzato con VelociBuilder - Another Project By: Marketing:Start! - Privacy Policy