Azione in corso...

Dati tecnici immobile

Appartamento
Vendita
2026
A4
33551
3
1
88
240.000,00

Locali Extra

CARATTERISTICHE EXTRA

1
1
Privato
In costruzione
In costruzione
Predisposizione impianto
Pompa di calore, A pavimento

DESCRIZIONE

Nel cuore del prestigioso complesso “Le Ville nel Lago”, nasce Residenze Il Lago, un progetto che porta il concetto di casa a un nuovo livello di benessere, dove ogni dettaglio è pensato per unire design, tecnologia e sostenibilità.

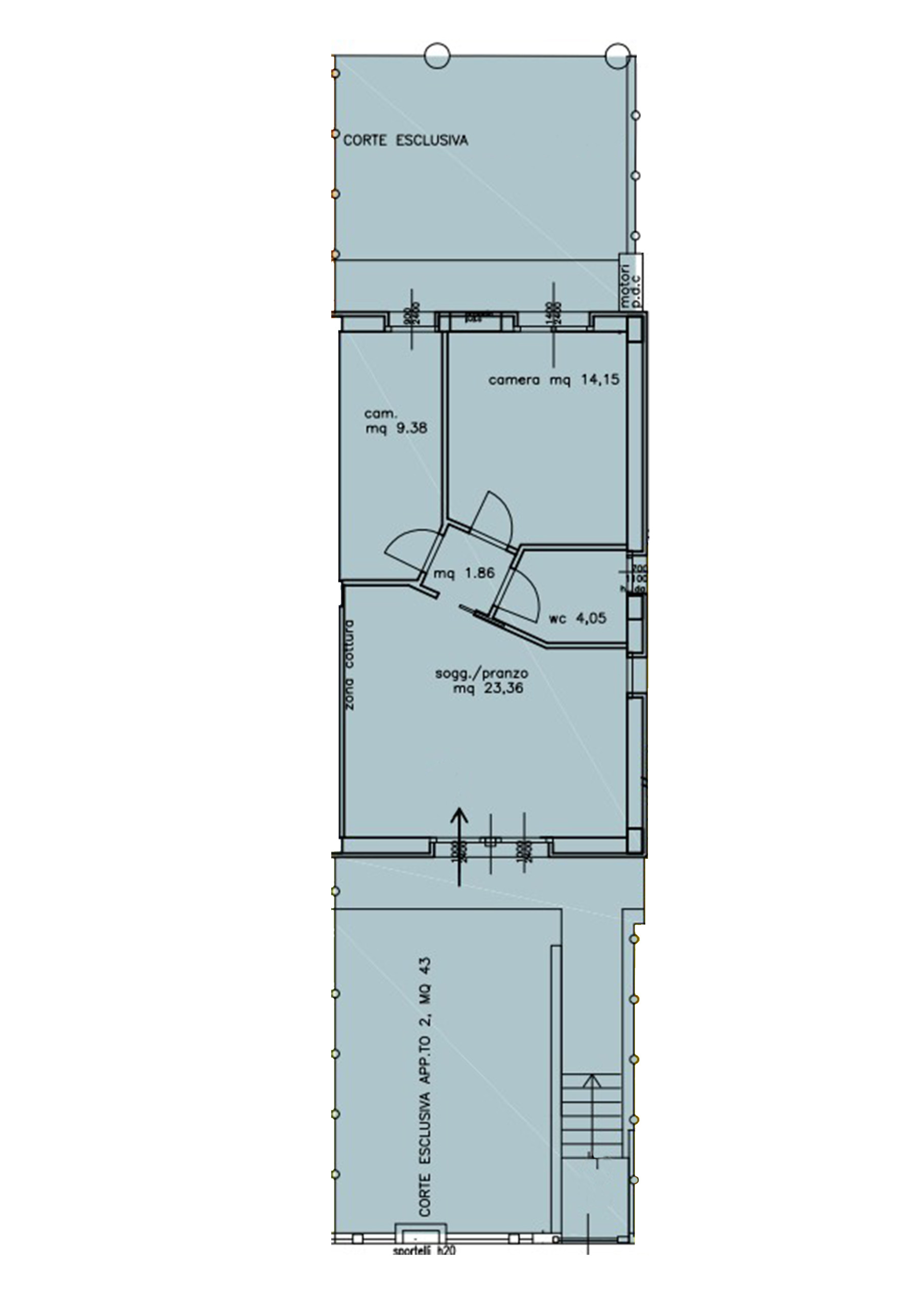
L’appartamento al piano terra, con ingresso indipendente e giardino privato, rappresenta l’equilibrio perfetto tra libertà e comfort. La zona giorno, luminosa e accogliente, accoglie un ampio soggiorno con cucina a vista che si apre verso il verde: uno spazio ideale per godersi colazioni all’aperto, pomeriggi di relax o serate tra amici sotto le stelle.

Nella zona notte trovano posto due camere da letto e un bagno moderno, studiato per garantire praticità e comfort quotidiano. Al piano interrato, un garage e un posto auto privato completano una soluzione abitativa pensata per chi desidera vivere senza rinunce.

Costruito secondo i più rigorosi criteri NZEB – Nearly Zero Energy Building, questo edificio di classe energetica A4 rappresenta il vertice dell’efficienza: consumi ridotti al minimo, nessuna bolletta del gas, comfort costante in ogni stagione e un impatto ambientale quasi pari a zero.

Le dotazioni tecnologiche includono:
riscaldamento a pavimento con pompa di calore, impianto fotovoltaico di proprietà, vetrate basso emissive, illuminazione LED ad alta efficienza e la possibilità di personalizzare le finiture secondo il proprio gusto.

Una casa che si adatta al tuo stile di vita: perfetta per una giovane coppia che inizia un nuovo capitolo, oppure per chi desidera ritrovare la serenità del piano terra e il piacere di uno spazio verde da vivere ogni giorno.

PLANIMETRIE

VIDEO DELL'IMMOBILE

VIRTUAL TOUR

MAPPA


Visualizza mappa più grande

RICHIEDI INFORMAZIONI

Compila il modulo per richiedere maggiori infomazioni sull'immobile

  Autorizzo la Società ad informarmi, a mezzo fax, email, sms, supporti cartacei o altro, su iniziative commerciali o informative, comunicazioni pubblicitarie, indagini di mercato, programmi a premi e rilevazioni del livello di soddisfazione della clientela. In qualsiasi momento, potrò chiedere di esercitare i diritti di cui all'art. 13 del DLG 3 30/06/03 n. 196.

Realizzato con VelociBuilder - Another Project By: Marketing:Start! - Privacy Policy