Azione in corso...

Dati tecnici immobile

Villa Bifamiliare
Vendita
1970
G
33584
11
3
450
199.000,00

Locali Extra

CARATTERISTICHE EXTRA

1
2
Privato
Libero
Da ristrutturare
GPL, A radiatori

DESCRIZIONE

In posizione tranquilla e riservata, immersa nel verde e nella quiete fra San Giovanni in Marignano e Tavullia, proponiamo una villa indipendente con ampio terreno di proprietà, ideale per chi desidera una residenza immersa nella natura da modellare secondo i propri desideri o per chi cerca un progetto abitativo con potenzialità di sviluppo.
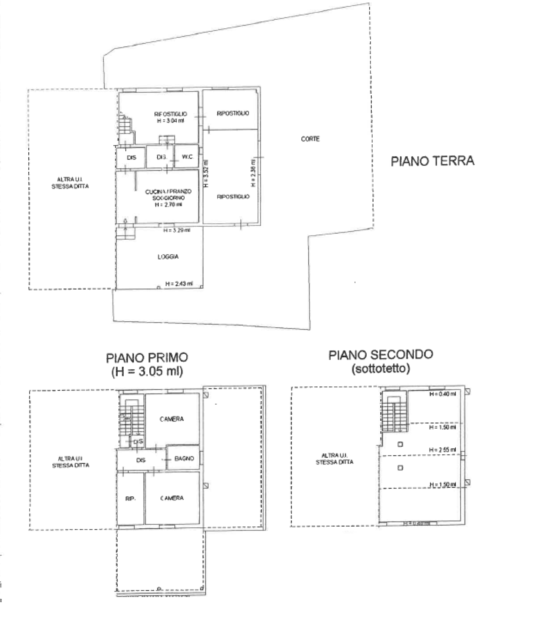
La struttura si presta perfettamente per essere trasformata in due unità terra-cielo distinte, con ingressi separati e totale indipendenza. Una delle due porzioni è già stata parzialmente ristrutturata e risulta, volendo, già abitabile: al piano terra ci accoglie una suggestiva loggia esterna con porticato e ingresso indipendente, che introduce in un'accogliente zona giorno composta da cucina e soggiorno, un bagno e un disimpegno funzionale. Da qui si accede ad ambienti accessori al grezzo, attualmente da ristrutturare, ma ricchi di potenzialità.
Al piano superiore troviamo due spaziose camere matrimoniali, un secondo bagno e un ripostiglio già adibito a cameretta. La mansarda, ancora allo stato grezzo, completa l’abitazione, offrendo spazio aggiuntivo da personalizzare secondo le proprie esigenze.
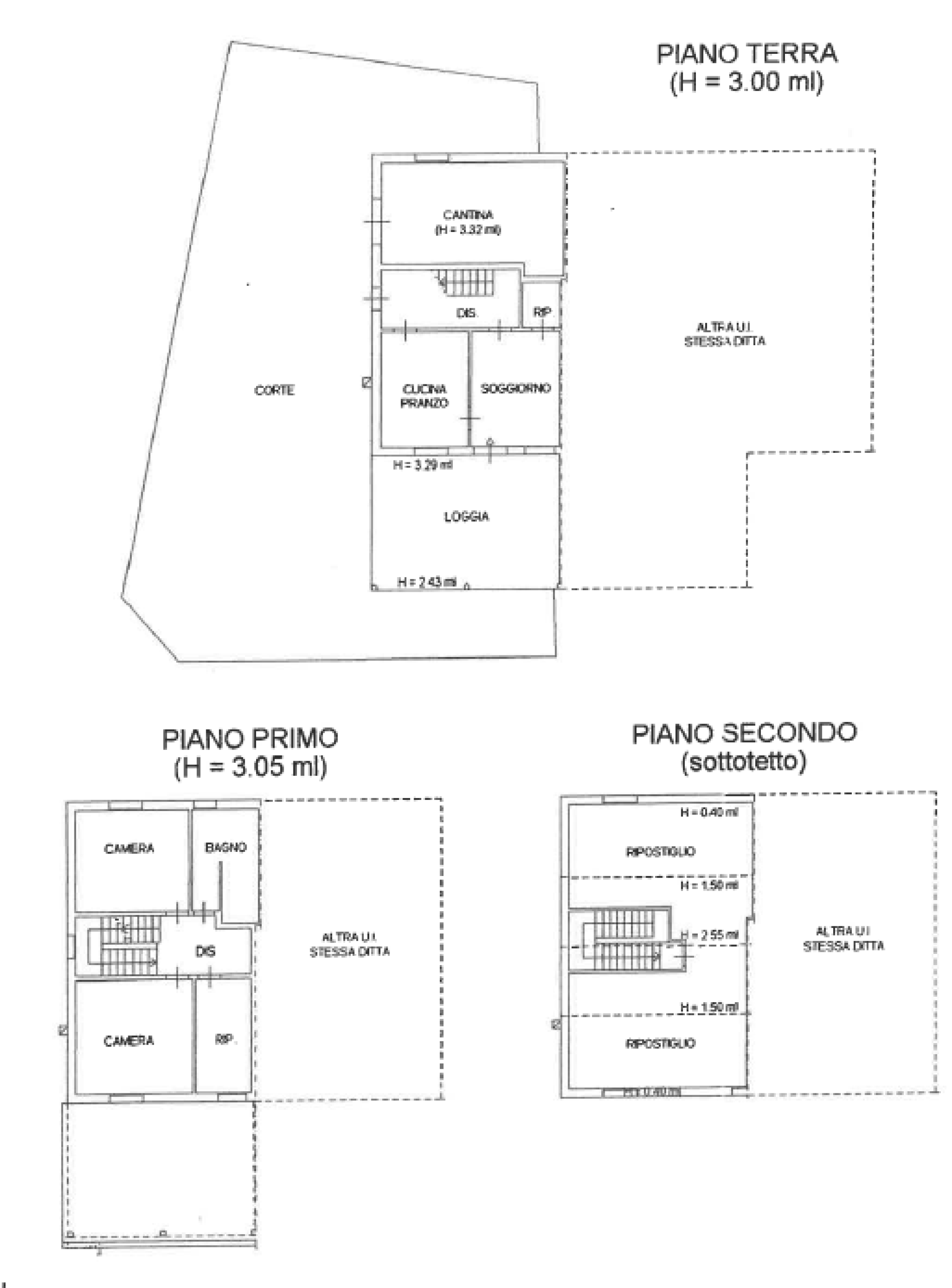
La seconda unità abitativa, gemella nella distribuzione degli spazi, si presenta interamente da ristrutturare, offrendo così l'opportunità di creare un secondo appartamento indipendente oppure un'unica grande residenza multifunzionale.
A rendere unica questa proprietà sono anche i numerosi accessori esterni: un ampio spazio per gli attrezzi, facilmente trasformabile in una graziosa dependance separata o in comodi box auto in grado di ospitare 3 o 4 veicoli, e un giardino privato di generose dimensioni che circonda la casa, perfetto per chi ama la vita all’aria aperta o desidera uno spazio verde esclusivo.
Una soluzione dalle grandi potenzialità, perfetta per famiglie numerose, per due nuclei familiari o per chi sogna una casa con annessi spazi per il lavoro, l’ospitalità o il relax, in una cornice naturale e silenziosa tutta da vivere.

PLANIMETRIE

VIDEO DELL'IMMOBILE

VIRTUAL TOUR

MAPPA


Visualizza mappa più grande

RICHIEDI INFORMAZIONI

Compila il modulo per richiedere maggiori infomazioni sull'immobile

  Autorizzo la Società ad informarmi, a mezzo fax, email, sms, supporti cartacei o altro, su iniziative commerciali o informative, comunicazioni pubblicitarie, indagini di mercato, programmi a premi e rilevazioni del livello di soddisfazione della clientela. In qualsiasi momento, potrò chiedere di esercitare i diritti di cui all'art. 13 del DLG 3 30/06/03 n. 196.

Realizzato con VelociBuilder - Another Project By: Marketing:Start! - Privacy Policy