Azione in corso...

Dati tecnici immobile

Appartamento
Vendita
1980
1
33821
4
2
100
288.000,00

Locali Extra

CARATTERISTICHE EXTRA

1
1
Libero
Ristrutturato
Predisposizione impianto
Metano, A pavimento
70,00

DESCRIZIONE

Quando cerchi casa solitamente ti focalizzi sul fatto che sia luminosa, spaziosa, accogliente. Vuoi che diventi il centro di tutto: dei tuoi affetti, della tua routine, dei servizi che ti semplificano la vita. Ecco perché questo appartamento al primo piano, in zona Ospedaletto a Coriano, potrebbe essere esattamente ciò che stavi cercando.
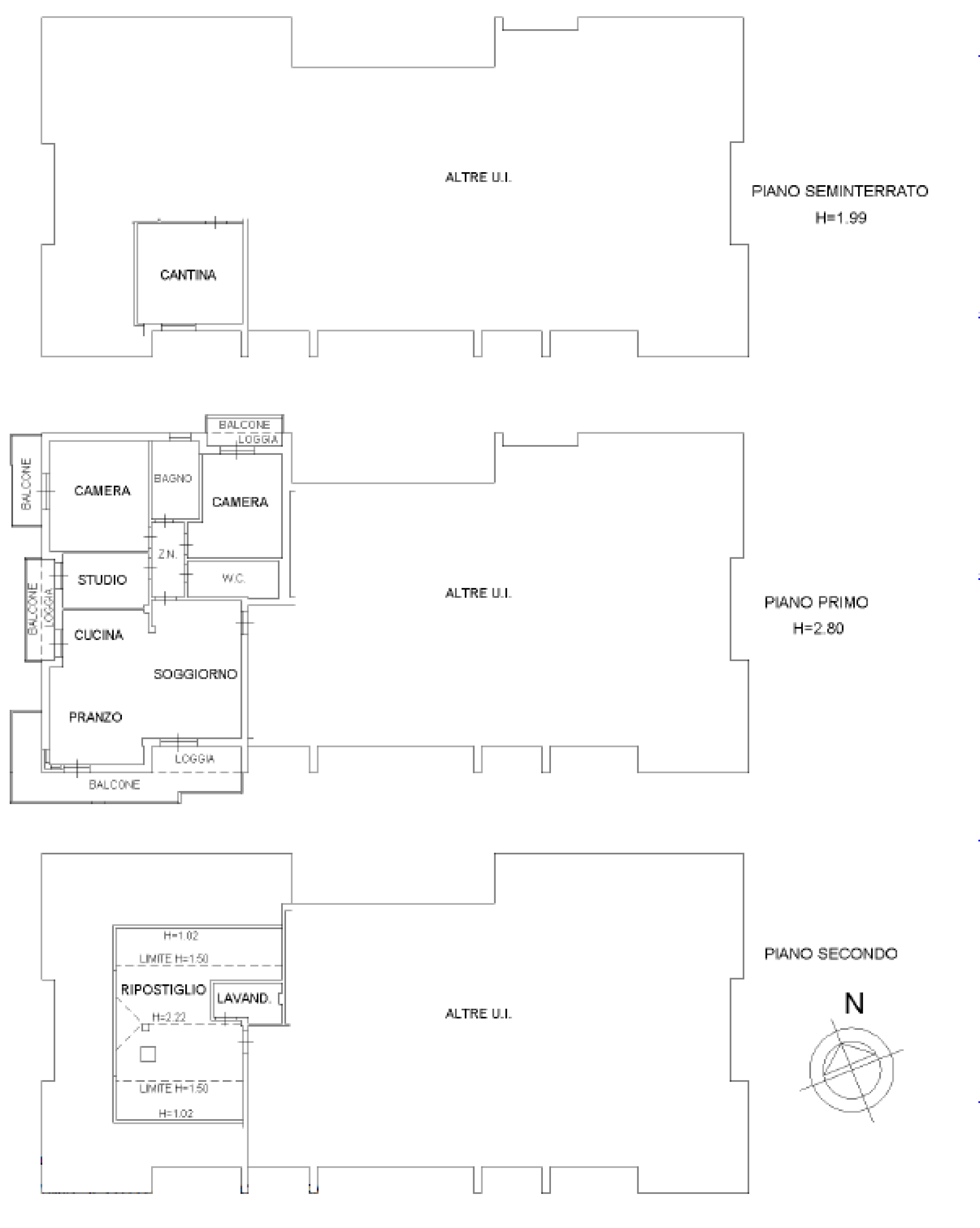
La luce qui è protagonista: ogni ambiente è caratterizzato da un’ottima esposizione e rende ancora più accogliente una zona giorno ampia e ben distribuita, con soggiorno e cucina a vista pensati per vivere insieme ogni momento, dalla colazione alla cena. Due camere spaziose e una terza stanza adibita a studio per chi ha bisogno di un eventuale spazio in più per gli ospiti.
Due bagni comodi, funzionali, pronti per l’uso quotidiano. E in più un ampio sottotetto indipendente, già dotato di riscaldamento e pannello solare, da personalizzare come vuoi: sala hobby, studio, zona relax, o una quarta stanza. Il potenziale è tutto da vivere.
L’appartamento è stato ristrutturato con cura: impianti nuovi, riscaldamento a pavimento nella zona abitativa, e radiatori nel sottotetto per mantenere tutto funzionale ed efficiente.
Il condominio sarà oggetto di un intervento di riqualificazione a partire da settembre, che prevede il rifacimento completo della facciata, dei balconi e l'intervento per i lavori a tetto e grondaie, un investimento già programmato che aumenterà il valore e l’efficienza dell’immobile.
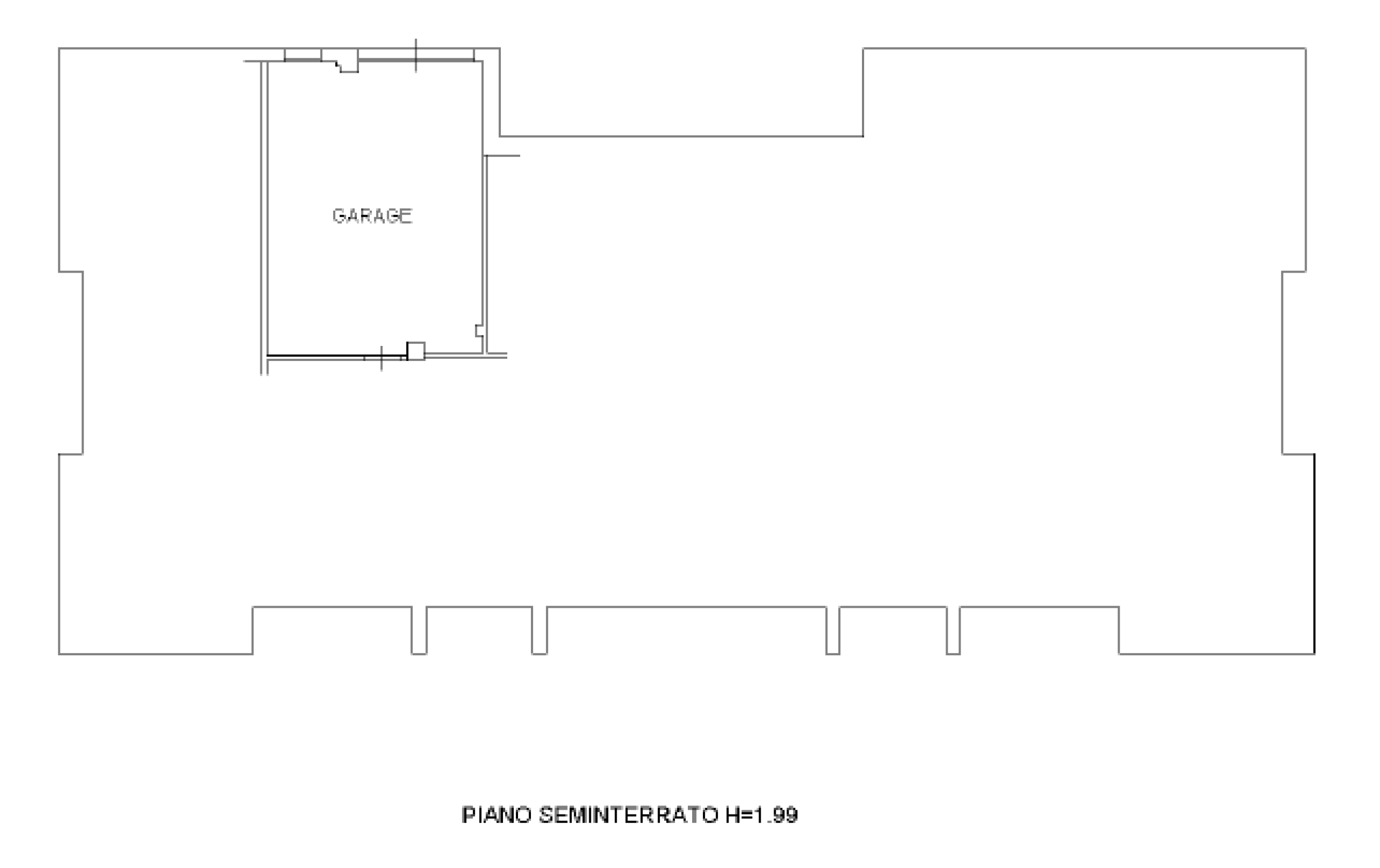
Completano la proprietà un comodo box auto e una spaziosa cantina, e una posizione top a pochi passi da scuole, negozi e tutti i principali servizi.
Non è solo un appartamento. È una casa pronta ad accogliere nuovi progetti di vita. Se sei interessato a questa soluzione, contattaci per prenotare la tua visita.

PLANIMETRIE

VIDEO DELL'IMMOBILE

VIRTUAL TOUR

MAPPA


Visualizza mappa più grande

RICHIEDI INFORMAZIONI

Compila il modulo per richiedere maggiori infomazioni sull'immobile

  Autorizzo la Società ad informarmi, a mezzo fax, email, sms, supporti cartacei o altro, su iniziative commerciali o informative, comunicazioni pubblicitarie, indagini di mercato, programmi a premi e rilevazioni del livello di soddisfazione della clientela. In qualsiasi momento, potrò chiedere di esercitare i diritti di cui all'art. 13 del DLG 3 30/06/03 n. 196.

Realizzato con VelociBuilder - Another Project By: Marketing:Start! - Privacy Policy