Azione in corso...

Dati tecnici immobile

Appartamento
Vendita
2010
1
D
33850
4
2
82
235.000,00

Locali Extra

CARATTERISTICHE EXTRA

1
1
Libero
Ottimo
Autonomo
Metano, A radiatori
20

DESCRIZIONE

A Misano Adriatico, in una zona che tanti sognano per praticità e posizione, c’è un appartamento che merita attenzione non per una sola caratteristica, ma perché funziona nel suo insieme. Due livelli, spazi ben separati e un potenziale che si adatta a chi lo vive: perfetto per una giovane coppia che cerca la prima casa, per iniziare un nuovo capitolo con tutto a portata di mano, o per chi vuole fare un investimento intelligente, facile da mettere a reddito.
La vicinanza al Misano World Circuit Marco Simoncelli diventa un valore vero, concreto, soprattutto per chi pensa agli affitti legati ai grandi eventi, alle gare, al moto mondiale e a tutto quel flusso continuo di persone che si muove durante l’anno. E sì, il mare è vicino, ma quel tanto che basta per arrivarci in pochi minuti quando ti va, e restare invece lontano dalla confusione nei giorni in cui vuoi solo calma. Una combinazione non scontata, che regala equilibrio tra energia della zona e serenità quotidiana.
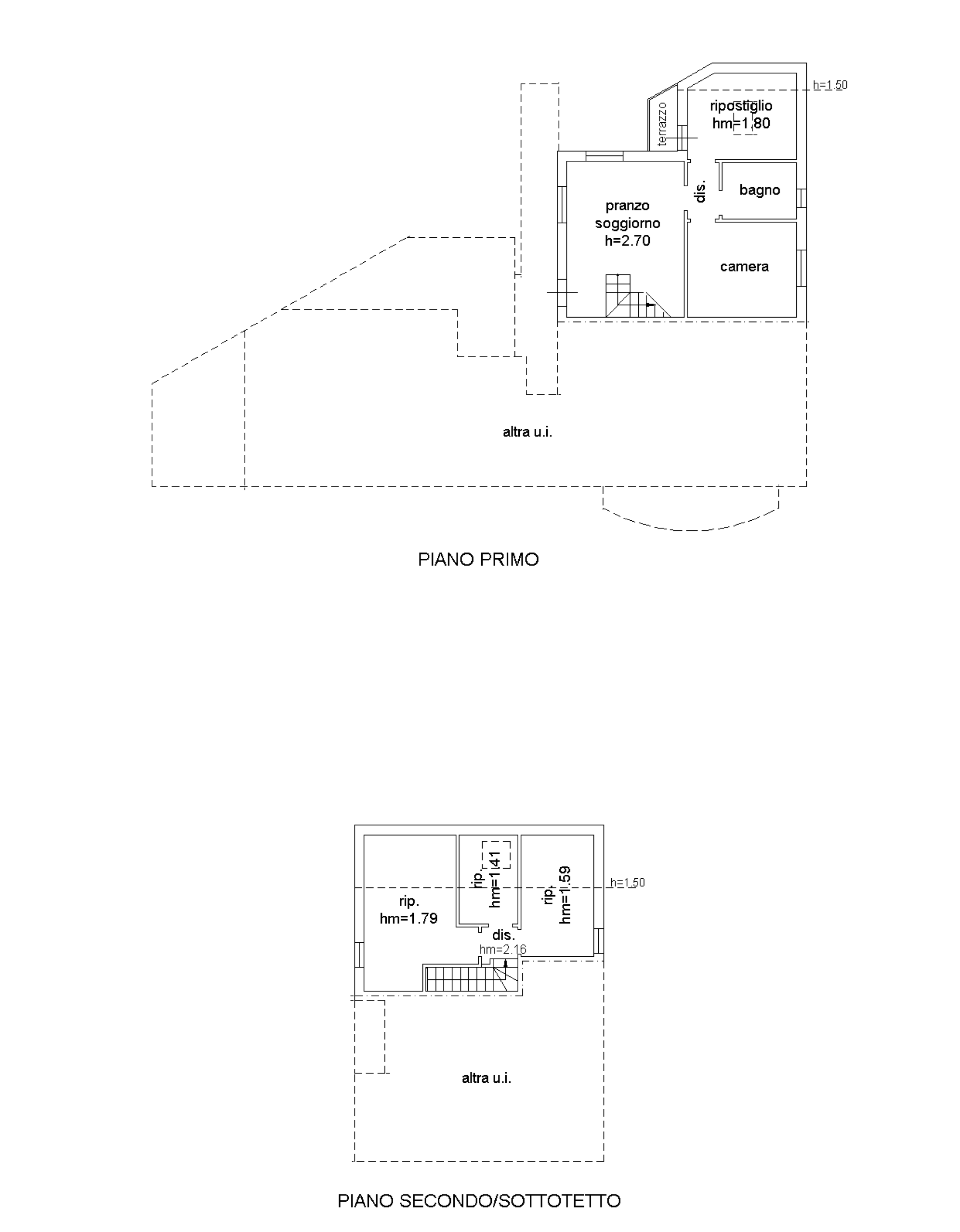
Entrando al primo piano, l’accoglienza è immediata: ambienti luminosi, un soggiorno pieno di luce naturale, la cucina separata, la camera matrimoniale e quel bagno finestrato che aggiunge sempre un tocco di qualità in più. È tutto ben distribuito. La scala interna ti accompagna al piano mansardato, dove i due locali accessori oggi fanno da camere, ma possono diventare qualsiasi cosa tu voglia: ripostigli, guardaroba, zona studio, spazio per gli hobby. Con un’altezza media di circa 1,70 m, non sono spazi perfetti per tutto, ma sono perfetti per tante idee. E quando una casa non limita il tuo progetto, ma lo accompagna, allora sì che ha un valore vero.
A chiudere il cerchio c’è il garage di circa 14 mq, un dettaglio prezioso nella gestione quotidiana, e gli spazi comuni ben curati, che quando rientri fanno sempre la differenza, anche solo nel modo in cui ti fanno sentire. Versatile, comoda, pronta all’uso, intelligente nel potenziale: insomma, una base solida per viverci o investirci, con un occhio al futuro, ma senza complicazioni inutili.
Potrebbe essere proprio la casa giusta da cui far partire il tuo prossimo progetto. E se così fosse, vale davvero la pena scoprirla dal vivo. Contattaci e la vediamo insieme con calma, senza fretta ma con entusiasmo. Sabato potrebbe essere il tuo giorno fortunato.

PLANIMETRIE

VIDEO DELL'IMMOBILE

VIRTUAL TOUR

MAPPA


Visualizza mappa più grande

RICHIEDI INFORMAZIONI

Compila il modulo per richiedere maggiori infomazioni sull'immobile

  Autorizzo la Società ad informarmi, a mezzo fax, email, sms, supporti cartacei o altro, su iniziative commerciali o informative, comunicazioni pubblicitarie, indagini di mercato, programmi a premi e rilevazioni del livello di soddisfazione della clientela. In qualsiasi momento, potrò chiedere di esercitare i diritti di cui all'art. 13 del DLG 3 30/06/03 n. 196.

Realizzato con VelociBuilder - Another Project By: Marketing:Start! - Privacy Policy