Azione in corso...

Dati tecnici immobile

Appartamento
Vendita
1960
2
F
34135
4
1
83
190.000,00

Locali Extra

CARATTERISTICHE EXTRA

Condominiale
Libero
Da ristrutturare
Autonomo
Pompa di calore, Ad aria

DESCRIZIONE

Sei alla ricerca di un investimento sicuro e di valore? Questa mansarda con destinazione d'uso: civile abitazione dotata di ampie altezze è situata in una villa indipendente ed è l'opportunità che non puoi lasciarti sfuggire. Perfetta per chi vuole fare un affare intelligente, questa proprietà, con un po' di ristrutturazione, può diventare un gioiello.

Entrando, ti accoglie un ingresso spazioso che si apre su una cucina a vista, ideale per creare un ambiente accogliente e funzionale. Le quattro camere da letto offrono ampie possibilità: che tu voglia destinarle ad affitti separati o trasformarle in un comodo rifugio per la tua famiglia, le altezze ottimali di questa mansarda ti garantiscono spazi vivibili e ariosi.

Il bagno, già presente, è facilmente rinnovabile per soddisfare le esigenze moderne. La presenza di finestre e velux assicura una luminosità naturale in tutta la casa, rendendola piacevole e accogliente in ogni stagione.

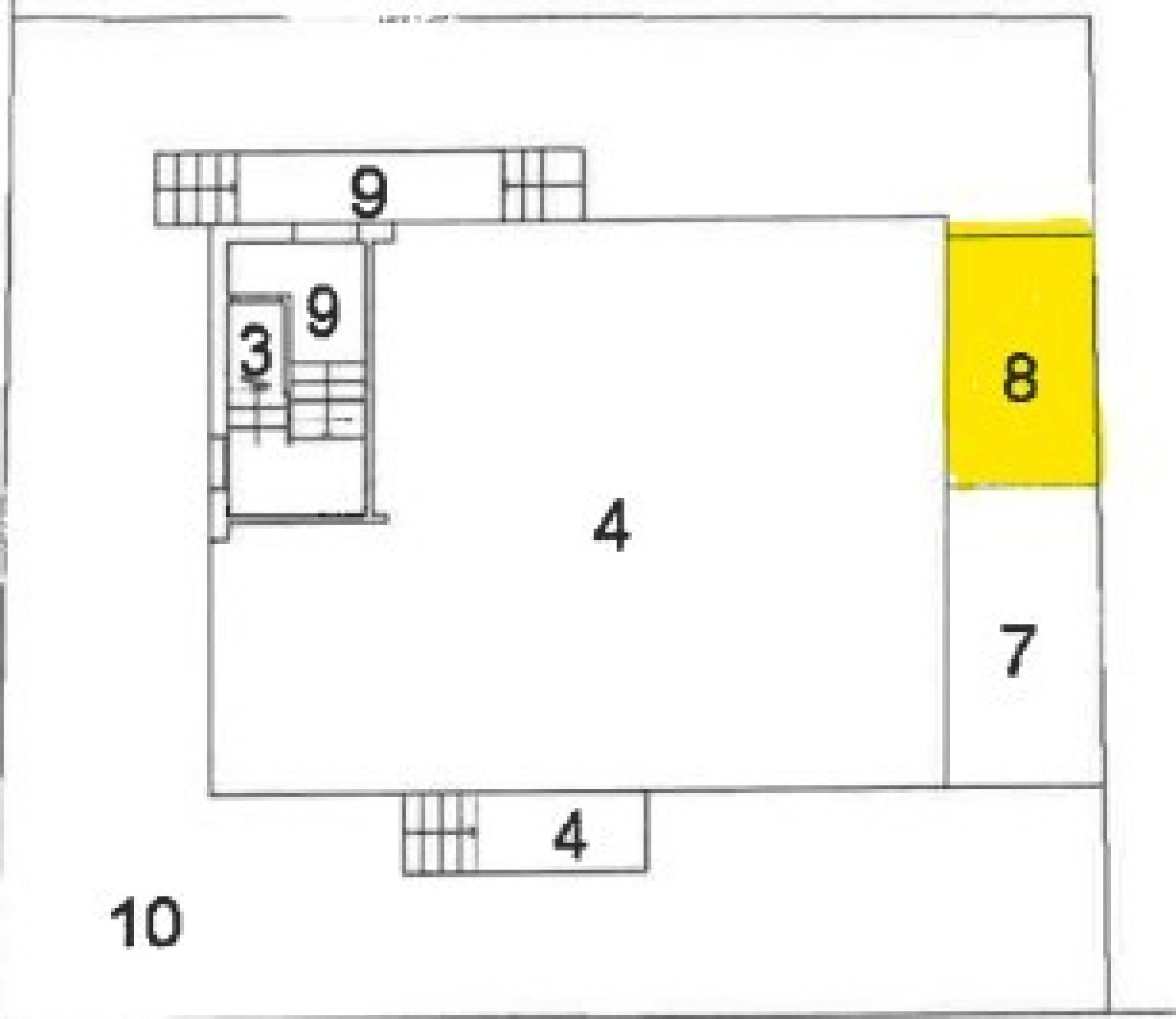
PLANIMETRIE

VIDEO DELL'IMMOBILE

VIRTUAL TOUR

MAPPA


Visualizza mappa più grande

RICHIEDI INFORMAZIONI

Compila il modulo per richiedere maggiori infomazioni sull'immobile

  Autorizzo la Società ad informarmi, a mezzo fax, email, sms, supporti cartacei o altro, su iniziative commerciali o informative, comunicazioni pubblicitarie, indagini di mercato, programmi a premi e rilevazioni del livello di soddisfazione della clientela. In qualsiasi momento, potrò chiedere di esercitare i diritti di cui all'art. 13 del DLG 3 30/06/03 n. 196.

Realizzato con VelociBuilder - Another Project By: Marketing:Start! - Privacy Policy