Azione in corso...

Dati tecnici immobile

Locale Commerciale
Vendita
1970
G
34199
6
800
800.000,00

Locali Extra

CARATTERISTICHE EXTRA

Libero
Buono
1
Autonomo
Pompa di calore, Ad aria

DESCRIZIONE

In una delle arterie più trafficate della zona, direttamente sulla Statale ad altissimo scorrimento, si trova questo ampio locale commerciale inserito all’interno di un complesso con grande affluenza quotidiana e dotato di un ampio parcheggio a servizio della clientela. Un contesto vivo, dinamico, dove ogni attività ha l’opportunità di essere vista, scelta e frequentata.

Il capannone si sviluppa su due livelli e si presenta con un’architettura moderna, completamente open space, illuminata da ampie vetrine che garantiscono massima esposizione e un forte impatto visivo. Gli ambienti, già pronti ad accogliere il pubblico, offrono infinite possibilità di personalizzazione.La presenza di più ingressi rende l’immobile perfettamente suddivisibile anche per utilizzi misti o plurime attività complementari, creando sinergie e valore. La distribuzione degli spazi, unita alla posizione strategica e alla facilità di parcheggio, offre condizioni ideali per chi vuole avviare o espandere un’attività in una zona in forte crescita commerciale.

Un’opportunità che unisce immagine, funzionalità e massima accessibilità. Perfetta per chi non si accontenta di un semplice locale, ma cerca un punto di riferimento solido e riconoscibile per il proprio business.

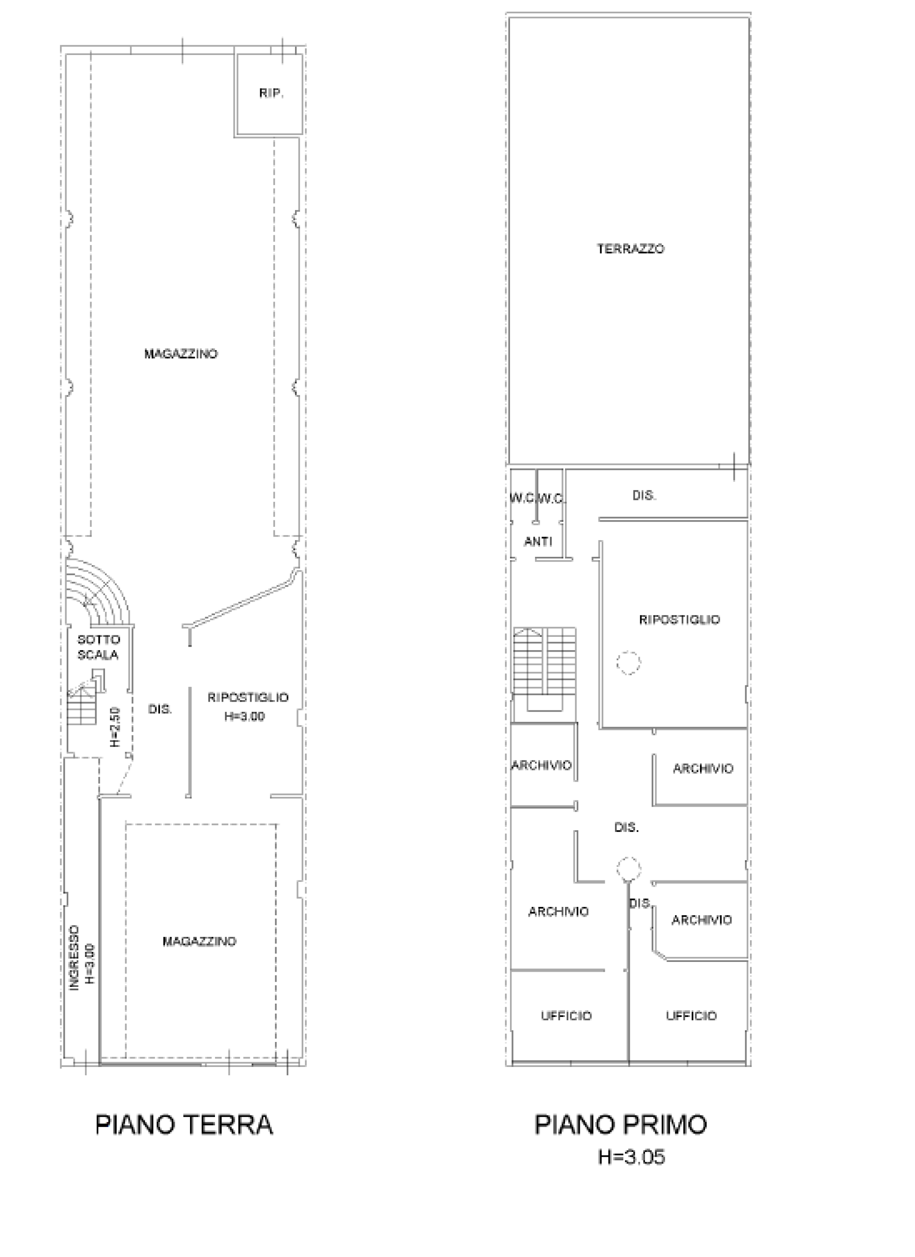
PLANIMETRIE

VIDEO DELL'IMMOBILE

VIRTUAL TOUR

MAPPA


Visualizza mappa più grande

RICHIEDI INFORMAZIONI

Compila il modulo per richiedere maggiori infomazioni sull'immobile

  Autorizzo la Società ad informarmi, a mezzo fax, email, sms, supporti cartacei o altro, su iniziative commerciali o informative, comunicazioni pubblicitarie, indagini di mercato, programmi a premi e rilevazioni del livello di soddisfazione della clientela. In qualsiasi momento, potrò chiedere di esercitare i diritti di cui all'art. 13 del DLG 3 30/06/03 n. 196.

Realizzato con VelociBuilder - Another Project By: Marketing:Start! - Privacy Policy