Azione in corso...

Dati tecnici immobile

Villa Unifamiliare
Vendita
1970
G
34354
7
2
320
269.000,00

Locali Extra

CARATTERISTICHE EXTRA

1
4
Privato
Libero
Da ristrutturare
Autonomo
Metano, A radiatori

DESCRIZIONE

Immersa nella tranquillità del verde delle colline tra Gabicce Mare e Tavollo, proponiamo in vendita una spaziosa casa indipendente ideale per chi desidera vivere in un contesto riservato, circondato dalla natura, ma allo stesso tempo a pochi minuti dai principali servizi e dal mare. Questa proprietà rappresenta una soluzione perfetta per chi cerca indipendenza, ampi spazi abitativi e ambienti versatili da adattare alle proprie esigenze.

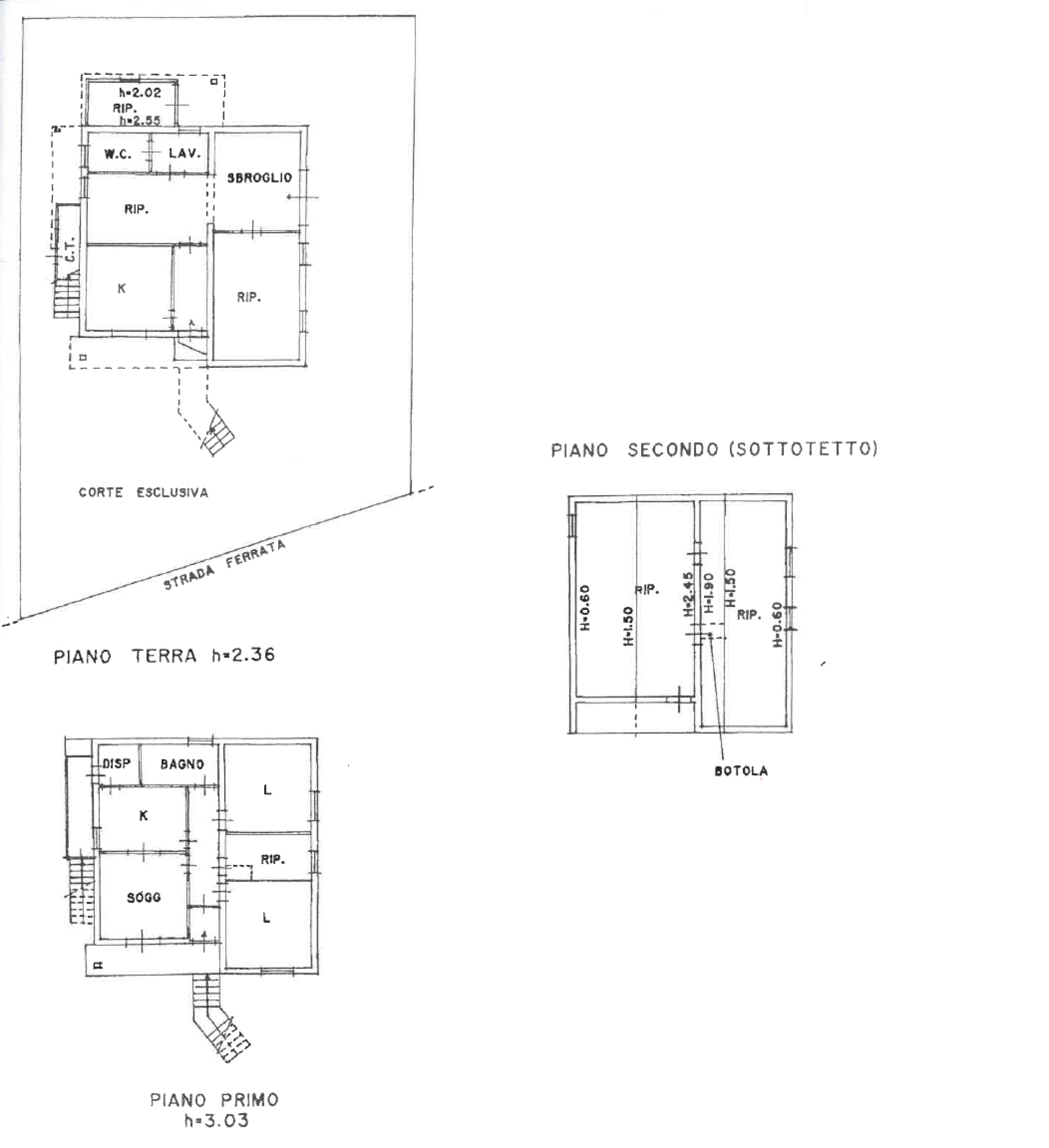
L’abitazione si sviluppa su due livelli distinti, offrendo una distribuzione degli spazi funzionale e ricca di potenziale. Al piano terra troviamo diversi ambienti di servizio che rendono la casa particolarmente pratica e adatta anche a chi necessita di spazi accessori per hobby, lavoro o deposito. Qui sono presenti una cucina, due bagni, un comodo ripostiglio, una lavanderia e un ampio garage utilizzabile anche come locale sgombero. Completano il piano un magazzino e ulteriori spazi che possono essere facilmente trasformati in taverna, laboratorio o zona multifunzionale e un sottotetto, uno spazio aggiuntivo di grande valore che può essere interpretato secondo le proprie esigenze.

Attraverso una scala esterna si accede al primo piano dove si sviluppa l’abitazione principale. L’ingresso conduce in un ambiente accogliente e ben distribuito che si apre sulla sala da pranzo, uno spazio luminoso e conviviale pensato per la vita quotidiana della famiglia. La cucina è separata e funzionale, mentre la zona notte è composta da tre camere da letto dalle dimensioni generose che garantiscono comfort e versatilità. Il piano è completato da un bagno e da un disimpegno collegato a un balcone verandato, uno spazio aggiuntivo che può essere utilizzato come zona filtro, angolo relax o piccolo ambiente multifunzione.

L’immobile è circondato dal verde e gode di un contesto tranquillo e riservato che permette di vivere appieno la quiete della campagna pur rimanendo a breve distanza dalle spiagge e dal centro di Gabicce Mare. Grazie alle sue ampie metrature e alla disposizione degli ambienti, questa casa rappresenta una soluzione ideale per famiglie che cercano spazio e indipendenza oppure per chi desidera personalizzare gli interni e valorizzare ulteriormente il potenziale dell’immobile.

Una casa che unisce tranquillità, indipendenza e generose dimensioni, perfetta per chi sogna di vivere immerso nel verde senza rinunciare alla comodità dei servizi e alla vicinanza al mare.

Se sei interessato a questa soluzione, contattaci.

PLANIMETRIE

VIDEO DELL'IMMOBILE

VIRTUAL TOUR

MAPPA


Visualizza mappa più grande

RICHIEDI INFORMAZIONI

Compila il modulo per richiedere maggiori infomazioni sull'immobile

  Autorizzo la Società ad informarmi, a mezzo fax, email, sms, supporti cartacei o altro, su iniziative commerciali o informative, comunicazioni pubblicitarie, indagini di mercato, programmi a premi e rilevazioni del livello di soddisfazione della clientela. In qualsiasi momento, potrò chiedere di esercitare i diritti di cui all'art. 13 del DLG 3 30/06/03 n. 196.

Realizzato con VelociBuilder - Another Project By: Marketing:Start! - Privacy Policy