Azione in corso...

Dati tecnici immobile

Appartamento
Vendita
1980
34548
7
2
185
235.000,00

Locali Extra

CARATTERISTICHE EXTRA

1
1
Privato
Libero
Ottimo
Metano, A radiatori

DESCRIZIONE

In una delle zone residenziali più apprezzate di Gabicce, precisamente zona Tavollo, proponiamo in vendita un appartamento con ingresso indipendente inserito all’interno di una palazzina di sole tre unità abitative, un contesto ideale per chi desidera privacy, silenzio e qualità della vita senza rinunciare alla comodità dei servizi e alla vicinanza al mare, raggiungibile in appena 10 minuti in bicicletta.
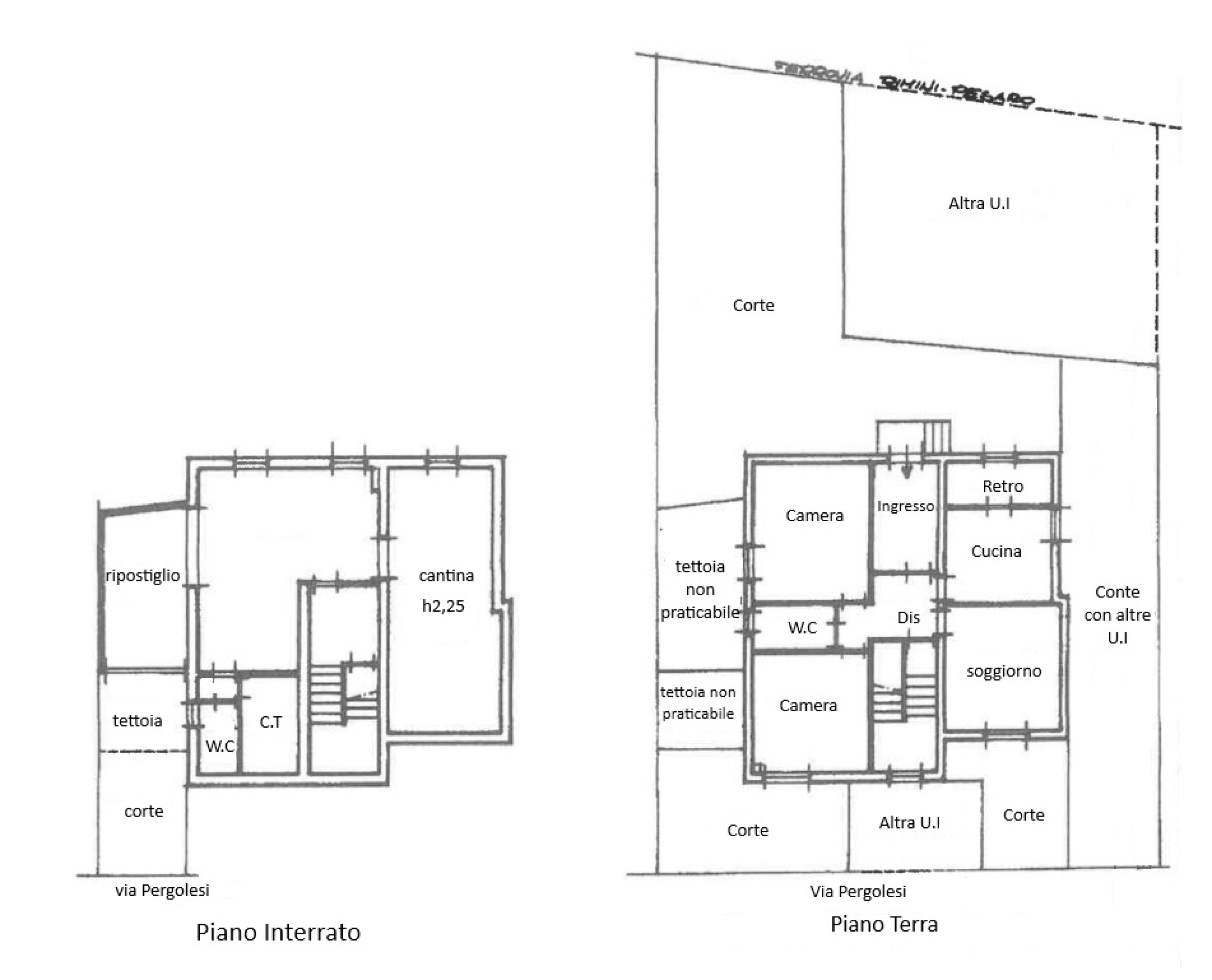
L’abitazione si sviluppa al piano terra e accoglie con ambienti ampi e ben distribuiti. La zona giorno, composta da soggiorno e cucina di generose dimensioni, è pensata per vivere la casa in modo conviviale e funzionale, mentre la zona notte offre due camere da letto spaziose e un bagno.
Un valore aggiunto importante è rappresentato dal piano interrato, collegato internamente, che apre a molteplici possibilità di utilizzo: un grande ambiente unico ideale per creare una taverna, uno spazio relax o una zona dedicata agli hobby, affiancato da locale cantina/ripostiglio, bagno e centrale termica. Una soluzione perfetta anche per chi cerca una casa flessibile, capace di adattarsi alle esigenze della famiglia nel tempo.
Dal piano interrato si accede direttamente all’area garage, dove troviamo due posti auto esclusivi coperti da tettoia, un plus sempre più raro e ricercato. Completa la proprietà una corte esclusiva, uno spazio esterno prezioso da vivere nella bella stagione.
Una soluzione ideale per famiglie che cercano ambienti comodi e indipendenza, ma anche per chi desidera una configurazione genitori/figli, grazie alla possibilità di sfruttare il piano interrato come ambiente abitativo separato e funzionale.
Se sei interessato a questa soluzione contattaci.

PLANIMETRIE

VIDEO DELL'IMMOBILE

VIRTUAL TOUR

MAPPA


Visualizza mappa più grande

RICHIEDI INFORMAZIONI

Compila il modulo per richiedere maggiori infomazioni sull'immobile

  Autorizzo la Società ad informarmi, a mezzo fax, email, sms, supporti cartacei o altro, su iniziative commerciali o informative, comunicazioni pubblicitarie, indagini di mercato, programmi a premi e rilevazioni del livello di soddisfazione della clientela. In qualsiasi momento, potrò chiedere di esercitare i diritti di cui all'art. 13 del DLG 3 30/06/03 n. 196.

Realizzato con VelociBuilder - Another Project By: Marketing:Start! - Privacy Policy