Azione in corso...

Dati tecnici immobile

Casa indipendente
Vendita
1967
2023
Non definita
Rif-506
9
4
290.00
395.000,00

Locali Extra

CARATTERISTICHE EXTRA

Garage/Posto auto esterno
3
Giardino di proprietà
Ottimo
1
Si / Centralizzata/Fredda e Calda
Autonomo|Pavimento

DESCRIZIONE

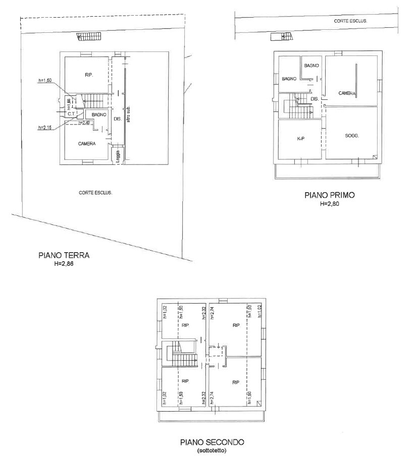
Nel cuore di Gradara, a soli cinque minuti a piedi dal celebre Castello di Paolo e Francesca , sorge questa straordinaria proprietà, completamente ristrutturata a nuovo per offrire il massimo del comfort, dell'efficienza energetica e della modernità. Una dimora che unisce il fascino storico della location a dotazioni all'avanguardia, perfetta per chi cerca una casa pronta da vivere senza compromessi. L'abitazione si sviluppa su tre livelli, ciascuno rifinito con attenzione ai dettagli. Al piano terra, troviamo una luminosa camera da letto, un pratico ripostiglio, un bagno moderno e un comodo box auto. Salendo al primo piano, la zona giorno accoglie con un'atmosfera calda e avvolgente: il soggiorno con camino crea un ambiente ideale per il relax, mentre la cucina abitabile è il cuore pulsante della casa. Da qui, un disimpegno conduce alla camera matrimoniale, arricchita da una cabina armadio walk-in , e due bagni eleganti e funzionali. Il secondo e ultimo piano, mansardato, offre ancora più spazio e versatilità, con quattro ambienti ripostiglio, di cui tre utilizzati come camere da letto e uno come bagno, dotati di condizionatori già installati per il massimo comfort. L'intera casa è stata oggetto di un'importante ristrutturazione integrale , con interventi mirati alla massima efficienza e durata nel tempo. Tutti gli impianti sono stati realizzati ex novo: idrico, gas, elettrico e fognario . Il comfort abitativo è assicurato dal riscaldamento a pavimento su tutti e tre i livelli , mentre l'intero impianto di illuminazione è stato progettato con tecnologia LED , per un basso consumo energetico e un'illuminazione moderna ed efficiente. La casa è inoltre dotata di impianto di allarme e predisposizione per videosorveglianza , oltre alla predisposizione per la climatizzazione su piano terra e primo piano, mentre al secondo piano i condizionatori sono già installati. A completare il quadro, un'ampia corte esterna privata , che rappresenta un vero valore aggiunto, offrendo la possibilità di parcheggiare comodamente fino a tre autovetture . Questa proprietà è la perfetta fusione tra fascino storico e tecnologia moderna, tra eleganza e funzionalità. Una casa pensata per chi desidera un'abitazione nuova, pronta all'uso, con finiture di pregio in una delle località più suggestive d'Italia . Un'opportunità unica che aspetta solo di essere vissuta. N.B. Si avvisa la spettabile clientela che le caratteristiche tecniche, la disposizione interna e gli accessori indicati, potrebbero in alcuni casi essere diversi dall'effettivo stato di fatto dell'immobile. A causa delle difformità dei dati pubblicati dai vari portali, la società Facile Rogitare Misano SRL declina ogni responsabilità per eventuali involontarie incoerenze. Si precisa che le descrizioni sopra riportante non rappresentano alcun impegno contrattuale.

PLANIMETRIE

VIDEO DELL'IMMOBILE

VIRTUAL TOUR

MAPPA


Visualizza mappa più grande

RICHIEDI INFORMAZIONI

Compila il modulo per richiedere maggiori infomazioni sull'immobile

  Autorizzo la Società ad informarmi, a mezzo fax, email, sms, supporti cartacei o altro, su iniziative commerciali o informative, comunicazioni pubblicitarie, indagini di mercato, programmi a premi e rilevazioni del livello di soddisfazione della clientela. In qualsiasi momento, potrò chiedere di esercitare i diritti di cui all'art. 13 del DLG 3 30/06/03 n. 196.

Realizzato con VelociBuilder - Another Project By: Marketing:Start! - Privacy Policy